Обяви За нас Контакти
Продава 2-СТАЕН
град Варна, Виница
99 500 €
194 605.09 лв.

(1 579 €, 3 088.26 лв./m2)
Цената е с включено ДДС
История на цената
Коригирана в 12:33 на 15 януари, 2026 год.
Обявата е посетена 494 пъти.
Площ:
63 m2
Етаж:
1-ви от 4
ТEЦ:
НЕ
Строителство:
Тухла, Не е въведен в експлоатация

Описание на имота:


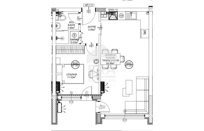
САМО В ЕРА ВИВА! Двустаен апартамент с просторна веранда в нов и модерен жилищен комплекс, без такса поддръжка в кв. Виница, гр. Варна. Идеално жилище за тези, които търсят комфорт и усещане за дом от висок клас. Разпределението е функционално и включва: входно антре, дневна с кухня /24.96 кв.м./, спалня /11.03 кв.м./, баня с тоалетна /2.89 кв.м./ и удобен килер за съхранение. Верандата разширява жизненото пространство и създава перфектно място за отдих на открито. Имотът се издава по БДС, с възможност за индивидуално довършване според Вашия стил.

Модерен комплекс от две луксозни сгради, изпълнени с естествен камък травертин, придаващ модерна и престижна визия. Обмисленият дизайн и висококачествените материали загатват за дълготрайност и класа. На разположение са подземен паркинг, гаражи, озеленени общи площи и детска площадка всичко необходимо за удобно и спокойно ежедневие на семействата. Предлага се възможност за разсрочено плащане, както и опция за закупуване на паркомясто или гараж.

Сградите са разположени в един от най-предпочитаните райони на Варна кв. Виница, известен с тишината, чистия въздух и зелените си пространства. Тук морската панорама се съчетава хармонично с борова гора, създавайки пространство за пълноценен живот, далеч от шума, но близо до всички градски удобства. Локацията предлага идеалния баланс между съвременен комфорт и природно спокойствие място, в което ежедневието се превръща в удоволствие.

Оферта 1009747
Особености
Тухла
Асансьор
За контакт:
0899655555
Агенция:
ЕРА ВИВА
052 655 555
ЕРА ВИВА logo
Медал за прослужено време
В imot.bg от 2015 г.
eraviva.imot.bg
Адрес:
област Варна, гр. Варна, кв. Левски, ул. 'Димитър Икономов' 17
http://era.bg/viva
ИЗПРАТИ ЗАПИТВАНЕ
ИЗПРАТИ ЗАПИТВАНЕТО

Продава 2-СТАЕН
град Варна, Виница
Обява: 1b176337180497987

99 500 €
194 605.09 лв.
История на цената
(1 579 €, 3 088.26 лв./m2)

Цената е с включено ДДС
ЗАПАЗИ ОБЯВАТА

Местоположение: град Варна, Виница

Допълнителни данни за имотите в района и сравнение с други райони

Покажи

Период

и 1 месец

* Средните цени са определени чрез медианна стойност