Обяви За нас Контакти
Продава 2-СТАЕН
град Варна, к.к. Св.Св. Константин и Елена
199 020 €
389 249.29 лв.

(3 110 €, 6 082.63 лв./m2)
Цената е с включено ДДС
История на цената
Коригирана в 9:29 на 27 февруари, 2026 год.
Обявата е посетена 294 пъти.
Площ:
64 m2
Етаж:
1-ви от 6
ТEЦ:
НЕ
Строителство:
Тухла, Не е въведен в експлоатация

Описание на имота:


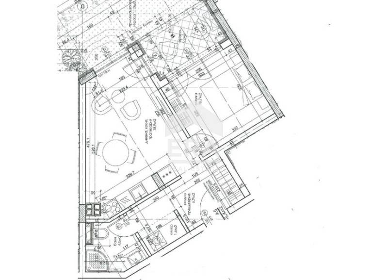
ЕРА Вива предлага за продажба двустаен апартамент в луксозна сграда в к.к. Св. Св. Константин и Елена, гр. Варна. Имотът е с обща площ 64.20 кв.м. /застроена площ 55.40 кв.м./ и е разположен на първи от общо шест етажа. Статут на апартамент и функционално разпределение: входно антре /6.9 кв.м./, просторен дневен тракт с кухненска част /18.9 кв.м./, спалня /10.7 кв.м./, комбинирана баня с тоалетна /4.00 кв.м./ и тераса с площ 5.2 кв.м., с излаз от двете основни помещения. Степен на завършеност по БДС, с поставена PVC дограма и външна блиндирана врата. Възможност за закупуване на подземно или открито паркомясто.

Модерна жилищна сграда с контролиран достъп, домофонна система, асансьор, видеонаблюдение и луксозно изпълнени общи части. Използваните материали и технологии са съобразени с последните иновации в строителния бранш, гарантирайки устойчивост и енергийна ефективност. Строителството стартира през януари 2026 г., а въвеждането в експлоатация е планирано за декември 2027 г. Предлага се гъвкава схема на плащане: 40% при предварителен договор, 30% при Акт 14, 20% при Акт 15 и 10% при Акт 16.

К.к. Св. Св. Константин и Елена един от най-предпочитаните и динамично развиващи се морски райони. Локацията е изключително подходяща както за инвестиция с цел отдаване под наем, така и за лично ползване, с бърз достъп до хипермаркет Lidl и само на 100 м от спирка на градския транспорт.

Оферта 1009834
Особености
Тухла
Асансьор
За контакт:
0899655555
Агенция:
ЕРА ВИВА
052 655 555
ЕРА ВИВА logo
Медал за прослужено време
В imot.bg от 2015 г.
eraviva.imot.bg
Адрес:
област Варна, гр. Варна, кв. Левски, ул. 'Димитър Икономов' 17
http://era.bg/viva
ИЗПРАТИ ЗАПИТВАНЕ
ИЗПРАТИ ЗАПИТВАНЕТО

Продава 2-СТАЕН
град Варна, к.к. Св.Св. Константин и Елена
Обява: 1b176969010668233

199 020 €
389 249.29 лв.
История на цената
(3 110 €, 6 082.63 лв./m2)

Цената е с включено ДДС
ЗАПАЗИ ОБЯВАТА

Местоположение: град Варна, к.к. Св.Св. Константин и Елена

Допълнителни данни за имотите в района и сравнение с други райони

Покажи

Период

и 3 месеца

* Средните цени са определени чрез медианна стойност