Обяви За нас Контакти
Продава 3-СТАЕН
град Варна, Бриз
204 600 €
400 162.82 лв.

(1 811 €, 3 542.01 лв./m2)
Цената е с включено ДДС
История на цената
Публикувана в 13:45 на 5 ноември, 2025 год.
Обявата е посетена 49 пъти.
Площ:
113 m2
Етаж:
Партер от 5
ТEЦ:
НЕ
Строителство:
Тухла, Не е въведен в експлоатация

Описание на имота:


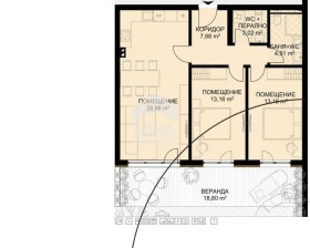
Представяме Ви просторен тристаен апартамент в кв. Бриз, гр. Варна. Имотът е с обща площ от 113.35 кв.м. и се състои от коридор /7,68 кв.м./, функционална дневна зона, кухненска част, трапезария и хол /26.98 кв.м./, две просторни и светли спални /13,16 кв.м. И 13,16 кв.м./, баня с тоалетна /4.51 кв.м./, перално помещение /3.02 кв.м./ и просторна тераса /18.80 кв.м./. Обширно и добре разпределено пространство, което може да бъде адаптирано според вашите нужди и предпочитания. Жилището се издава завършено по БДС, на шплакловка и замазка, с поставена PVC дограма и външна блиндирана врата.

Модерна сграда с подземен паркинг на две нива, осигуряващ сигурност и удобство за вашия автомобил. Използваните материали и технологии са съобразени с последните иновации в строителния бранш, гарантирайки устойчивост и енергийна ефективност. Осемместен електрически асансьор ORONA, PVC дограма шесткамерна/седемкамерна профили Gealan, с енерджи стъкла /четири сезона/, тухлена зидария с тухли Wienerberger, топлоизолация XPS 10 см, каменна вата KNAUFF 8 см, шпакловка с флексово лепило и мрежа, дюбелиране, минерална мазилка, вътрешни и външни подпрозоречни первази от гранит.

Гъвкави схеми на плащане!

Квартал Бриз е предпочитан от мнозина заради близостта си до прекрасната Морска градина и отличната транспортна инфраструктура. Бърз и удобен достъп до централната градска част се осигурява посредством булевард 'Княз Борис I'. Другите две основни пътни артерии в района са булевард 'Осми Приморски полк' и булевард 'Васил Левски', които свързват автомобилния трафик със съседните квартали и курортните комплекси на север от града. За любителите на плажовете, в близост до квартала се намират 'Четвърта буна' и 'Почивка'.

ЕРА е лицензиран КРЕДИТЕН ПОСРЕДНИК и предлага БЕЗПЛАТНА консултация на своите клиенти!

Оферта 1009718
Виж всички обяви в eraviva.bazar.bg или тук
Особености
Тухла
Асансьор
За контакт:
0899655555
Агенция:
ЕРА ВИВА
052 655 555
ЕРА ВИВА logo
Медал за прослужено време
В imot.bg от 2015 г.
eraviva.imot.bg
Адрес:
област Варна, гр. Варна, кв. Левски, ул. 'Димитър Икономов' 17
http://era.bg/viva
ИЗПРАТИ ЗАПИТВАНЕ
ИЗПРАТИ ЗАПИТВАНЕТО

Продава 3-СТАЕН
град Варна, Бриз
Обява: 1c176234311149478

204 600 €
400 162.82 лв.
История на цената
(1 811 €, 3 542.01 лв./m2)

Цената е с включено ДДС
ЗАПАЗИ ОБЯВАТА

Местоположение: град Варна, Бриз

Допълнителни данни за имотите в района и сравнение с други райони: Търсене в АРХИВ 2013 - 2025 г.











Добави/редактирай
вид имот и район
*Средните цени са определени чрез медиана стойност.